Můžeme pracovat s cookies,
ať víme, jak to na našem webu žije?

Náhled 1
Náhled 2
Náhled 1

Popis domu Bianca

Bianca je celosvětově známá odrůda révy, lahodná a odolná. Přesně to se hodí k naší Biance. Úhlednost, čistota a klasické provedení příjemného rodinného bungalovu Bianca poskytuje svým obyvatelům nebývalý komfort a bezpečí. Rozumně oddělené prostory pro váš odpočinek navazují na prosvětlenou kuchyni s jídelnou a obývákem. Bonusem je carport v základní ceně! Zamilujte se domu Bianca od Dřestavu.

Parametry a cena

Provedení domu

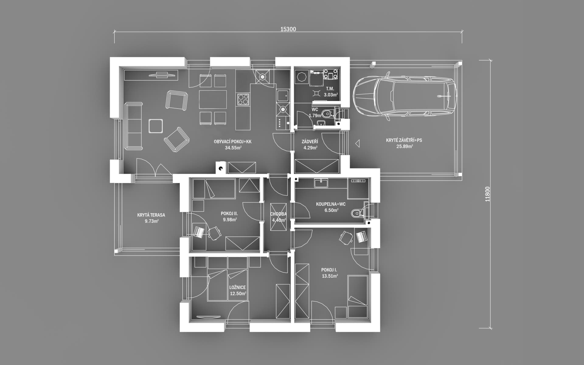
4+kk

Užitná plocha

90,55 m²

Zastavěná plocha

146,89 m²

Rozměry domu

15,30 m x 11,80 m

Přesah střechy

0,50 m

Sklon střechy

22°

V ceně domu na klíč získáte

  • Základová deska
  • Projektová dokumentace pro stavební povolení včetně ing. sítí 1)
  • Asistence povolení stavby
  • Radonové a geo průzkumy
  • Tepelné čerpadlo s chlazením
  • Komín
  • Podlahové topení
  • Rekuperace 2)
  • DPH 12% v ceně domů
  • Ceny s dopravou po celé ČR

1) ing. sítě mezi domem a hranicí pozemku
2) vyjma domů řady Smart

Sjednejte si schůzku s naším obchodním zástupcem, který Vám představí variantu domu BEZ REKUPERACE (SMART) za ještě VÝHODNĚJŠÍ CENU.

Cena domu - hrubá stavba

2 454 517,- Kč s DPH

+

Cena základové desky

563 315,- Kč s DPH 

Poptat rozpočet

Cena domu k dokončení

4 398 927,- Kč s DPH

+

Cena základové desky

563 315,- Kč s DPH 

Poptat rozpočet

Cena domu na klíč

4 917 772,- Kč s DPH

(bez základové desky)

+

Cena základové desky

563 315,- Kč s DPH 

Poptat rozpočet

Zeptejte se nás na cokoliv,
co vás zajímá:

Dlouholeté zkušenosti a profesionalita

Jak po stránce energetické, náročnosti na vybavení, architektonické, ale i finanční, dokážeme uspokojit každého, kdo hledá kvalitní dřevostavbu.

1080+ postavených domů
10+ let na trhu
30+ variant domů